当前位置:首页>消防设计

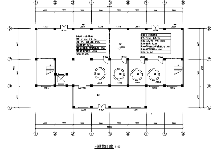
农家园酒店消防设计

发布日期:2023-04-19    浏览次数:742



在线咨询
微信咨询
18511888864
18511888864
返回顶部